Wingfield 78 Wingfield Road

Enquire Now
< >

For Lease
Contact Agent

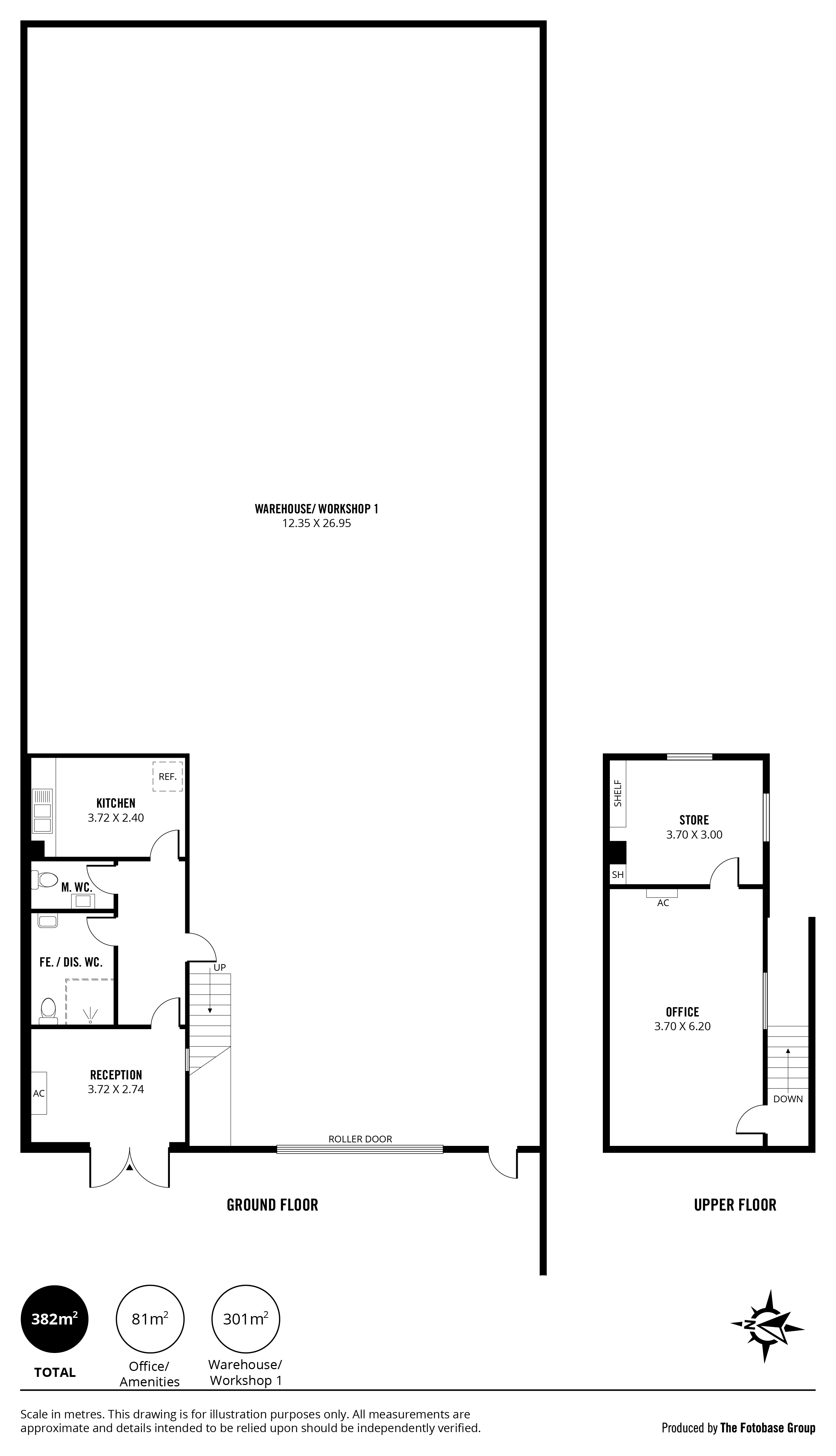
Premium Warehouse with Office Space & All Amenities

Rental Details

Open Times

Share This Property


Positioned in the heart of Wingfield's industrial hub, this versatile and well-presented commercial property offers a high-quality warehouse and office solution, ideal for a wide range of business uses.

Property Features:
Total Building Area: 382m²Warehouse: 301m² – with high clearance and excellent natural lightOffice/Amenities: 81m² – Including a modern front reception area, air-conditioned offices, kitchen, and toilet & shower facilitiesIndustrial-sized roller door for easy access and deliveriesFront-facing secure unit in a complex of just three warehouses Three allocated on-site car parks
Functional layout with a professional image – suitable for warehousing, distribution, light manufacturing, or service-based businesses
This property presents a fantastic opportunity for businesses seeking an affordable, well-located space in the northern suburbs, with easy access to major arterial roads including South Road and the Northern Expressway.

RLA:262459

Property Information

  • Floor area approx 382sqm
Century 21 Connect Connect
1/628 Lower North East Road
Campbelltown SA 5074
 
Phone0882986999  
 
 


Local Information Wingfield

Education

Nearest Government Schools

  • Woodville Gardens School Birth-6
  • Pennington School R-6
  • The Grove Education Centre
  • Woodville High School
  • Challa Gardens Primary School
  • Alberton Primary School

Nearest Private Schools

  • St Joseph's School
  • St Patrick's School
  • Ngutu College
  • Mount Carmel College
  • St Brigid's School
  • Whitefriars School

Local Amenities

Services

  • Angle Park Fire Station
  • Rosewater Post Office
  • Alberton Post Office
  • Dry Creek Post Office

Parks

  • Eastern Parade Reserve
  • Heini Becker Park
  • S N Davey Reserve
  • Fawk Reserve

Community Facilities

  • Parks Community Centre
  • Australian Museum Of Childhood
  • Charles Sturt Library
  • Enfield Library

Sport and Recreation

  • Pennington Oval
  • Regency Park Golf Course
  • Regency Golf Course
  • Eric Sutton Oval

Healthcares

  • Regency Park Care Centre
  • Community Mental Health Clinic_ Woodville
  • Beaufort Clinic
  • Australian Museum Of Childhood