Lonsdale 8 Kiwi Court

Enquire Now
< >

For Lease
Contact Agent

Versatile Colourbond Warehouse with Offices & Dual Access

Rental Details

Open Times

Share This Property


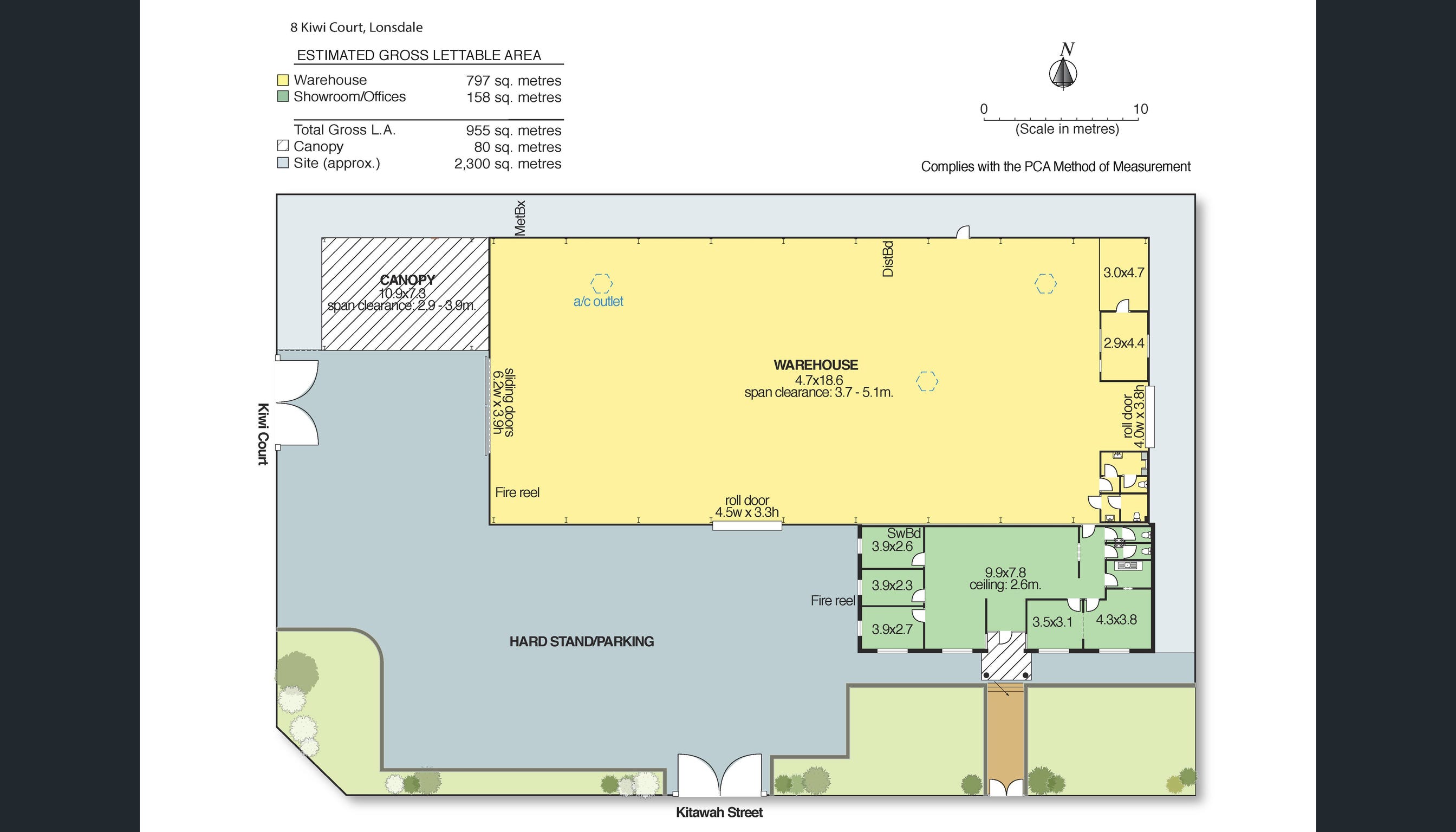
This high-quality Colourbond warehouse offers a functional and well-presented industrial facility in a prime corner location. Featuring excellent access, modern amenities, and a large concrete site, the property is ideally suited to a wide range of industrial, trade, or logistics users.

797 sqm high-clearance Colourbond warehouse158 sqm of showroom and office accommodation2,300 sqm fully concreted and landscaped sitePrime corner position with dual accessKitchen facilities and separate male and female amenitiesWarehouse fitted with evaporative cooling80-amp power supplyAdditional external canopy area of approximately 80 sqm
Overall, this is a versatile and well-equipped industrial property offering excellent exposure, accessibility, and on-site amenities. An outstanding opportunity for owner-occupiers or tenants seeking a prominent and practical facility in a highly accessible location.

RLA 314904

Property Information

  • Land area approx 2300sqm
  • Floor area approx 955sqm
Century 21 Southern Southern
170 Main South Road
Morphett Vale SA 5162


Local Information Lonsdale

Education

Nearest Government Schools

  • Morphett Vale Primary School
  • Lonsdale Heights Primary School
  • Reynella South Primary School
  • O'Sullivan Beach Primary School
  • Christie Downs Primary School
  • Flaxmill School P-6

Nearest Private Schools

  • Antonio Catholic School
  • Southern Montessori School
  • St John the Apostle Catholic School
  • FAME - Flexible Accredited Meaningful Engagement
  • Calvary Lutheran Primary School
  • Southern Vales Christian College - Morphett Vale Campus

Local Amenities

Services

  • Christie Downs Fire Station
  • Morphett Vale Post Office
  • Christies Beach Police Station
  • Reynella Post Office

Community Facility

  • Hallett Cove Community Centre

Viticulture

  • Hardys Winery
  • St Francis Winery
  • Hardys Reynella Winery

Sport and Recreation

  • Bice Oval
  • Noarlunga Downs Oval

Parks

  • Asor Park Reserve
  • Christies Beach Caravan Park
  • Hallett Cove Conservation Park