Banksia 41a Farr Street

Enquire Now

Watch
Video
< >

Auction
Saturday, 21st February 2026 at 6:00pm
On Site
Contact Agent | Ali Oksuz

×

Quick Loan Calculator

  • Purchase Price 0
  • Deposit 0
  • Loan Amount 0
  • Monthly Repayment 0
  • Total Repayments 0
We can help you get the best deal from a range of lenders including large banks, key regional banks, credit unions and non-bank lenders. No stress, no fuss.
Save on a loan now
Disclaimer: This calculator does not include any taxes, fees, duties or levies. Before deciding on a loan product, you should seek independent financial advice from an a licensed financial adviser.

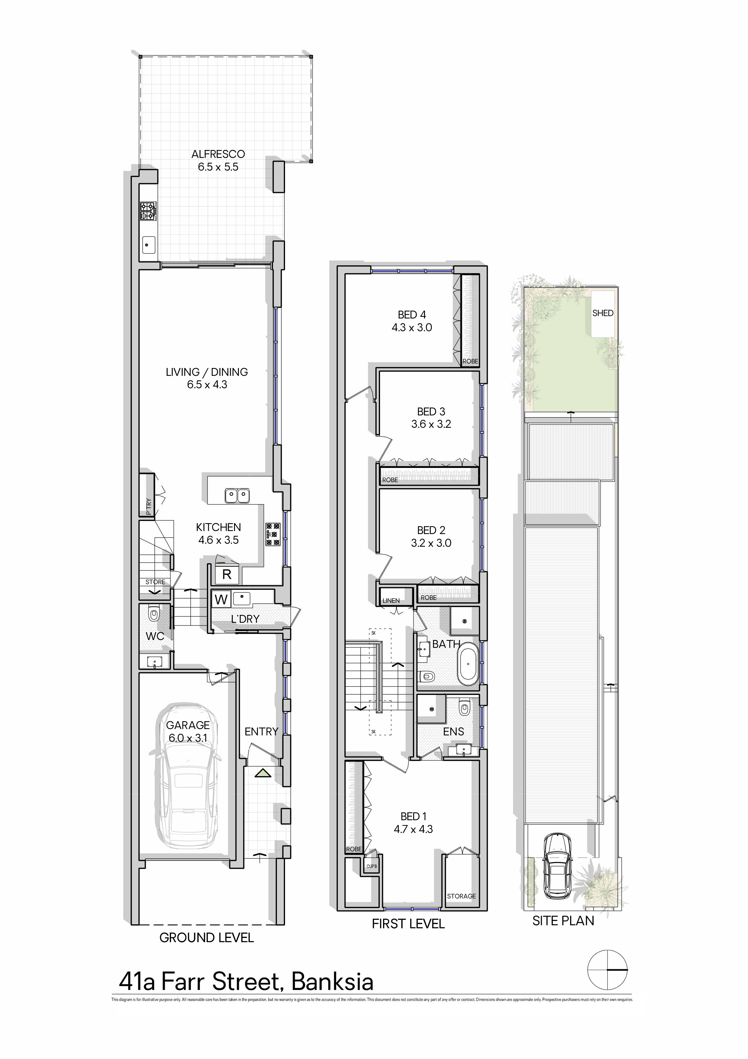
Impressive in scale, design and quality, this freestanding family home showcases sleek contemporary interiors with premium finishes throughout a bright and spacious layout, offering an expansive 185sqm of internal living space.

Beautifully proportioned, the home offers open-plan living and dining areas that flow seamlessly to a covered entertainers' terrace with built-in cooking and barbecue facilities, overlooking a low-maintenance, landscaped level garden.

Free flowing living and dining under high ceilingSunny entertainers' terrace and barbecue areaLandscaped level garden ideal for children and petsGourmet kitchen includes 900mm oven/gas cooktopQuality stone benchtops and integrated dishwasherFour bedrooms have built-ins, master has ensuite3 luxury bathrooms, main with freestanding bathPowder room, ducted a/c, security, video intercomSuperior tiled and engineered timber floorsInternal entry lock-up garage, off street car space
Complete with generous accommodation and ample parking, the property is peacefully set in a quiet street just moments from two train stations, quality schools, local shopping precincts and beaches, with the CBD within easy reach.

Property Features

  • Car Spaces 1
  • Garages 1
  • Air Conditioning
Century 21 Bayview Bayview
343 Bay Street
Brighton-Le-Sands NSW 2216
 
Phone02 9599 4666  
Lic No1388483  


Local Information Banksia

Education

Nearest Government Schools

  • Rockdale Public School
  • Arncliffe Public School
  • Cairnsfoot School
  • Athelstane Public School
  • St George Girls High School
  • Kyeemagh Public School

Nearest Private Schools

  • St Dominic Savio School
  • St Joseph's Catholic Primary School
  • St Francis Xavier's Catholic Primary School
  • St Thomas More's Catholic School
  • Kingdom Culture Christian School
  • Al Zahra College

Local Amenities

Parks

  • Muddy Creek Reserve
  • Studdert Reserve
  • Francis Avenue Reserve
  • Whiteoak Reserve

Services

  • Arncliffe Post Office
  • Rockdale Post Office
  • Bexley Post Office
  • Kogarah Post Office

Sport and Recreation

  • Redmond Oval