Bullaburra 88 Genevieve Road

Enquire Now
< >

For Sale
P.O.A.

×

Quick Loan Calculator

  • Purchase Price 0
  • Deposit 0
  • Loan Amount 0
  • Monthly Repayment 0
  • Total Repayments 0
We can help you get the best deal from a range of lenders including large banks, key regional banks, credit unions and non-bank lenders. No stress, no fuss.
Save on a loan now
Disclaimer: This calculator does not include any taxes, fees, duties or levies. Before deciding on a loan product, you should seek independent financial advice from an a licensed financial adviser.

A Private Blue Mountains Sanctuary of Space, Scale & Serenity

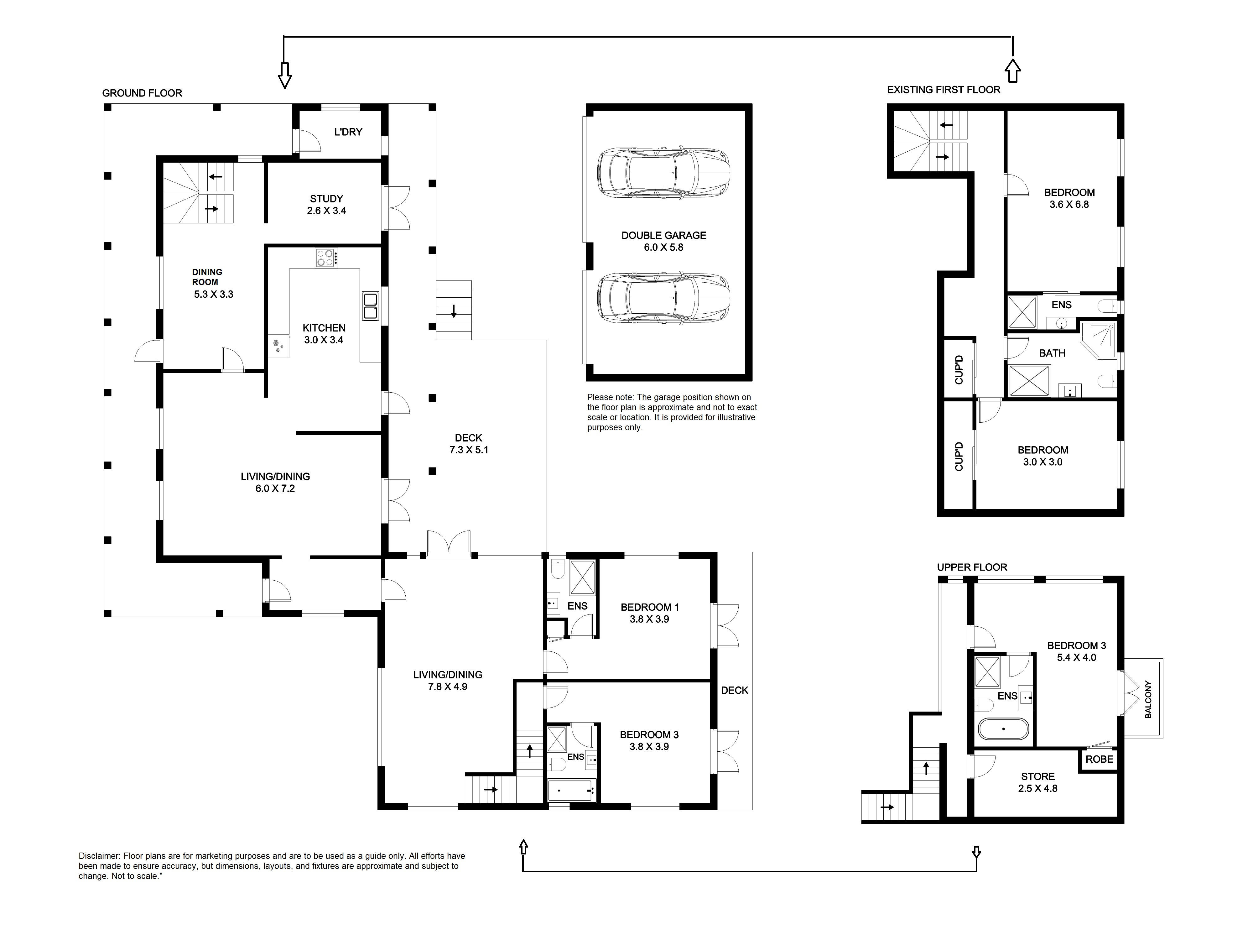
5 5 2

Open Times

Share This Property


Offered to the market for the very first time in over 20 years, 88 Genevieve Road presents an extraordinary opportunity to secure one of Bullaburra's most tightly held lifestyle properties. Set on an impressive 3,104m² parcel and embraced by sweeping bushland surrounds, this grand weatherboard residence delivers complete privacy, breath taking valley vistas and a serene connection to nature that is increasingly rare to find.

Privately positioned and immersed in its natural setting, the home enjoys established gardens, towering trees and the peaceful soundtrack of native birdlife including the iconic lyrebird. Every window frames a leafy outlook, creating a true Blue Mountains sanctuary that feels worlds away, yet remains conveniently located.

Designed with space, comfort and versatility in mind, this substantial residence is perfectly suited to large families and offers exceptional flexibility for extended or multi-generational living. With five generously proportioned bedrooms and five well-appointed bathrooms, there is ample accommodation for growing families, guest stays or separate family zones. The thoughtful layout allows everyone to enjoy their own space while still feeling connected.

A dedicated study provides the ideal work from home environment, home office or quiet retreat. Multiple expansive living areas flow effortlessly throughout the home, creating distinct zones for relaxation, entertaining and everyday family life. Whether accommodating teenagers, in-laws or long-term guests, the floorplan offers adaptability to suit a variety of family dynamics.

A substantial formal dining room provides the perfect setting for hosting special occasions and large family gatherings, while additional casual living areas ensure comfort and practicality for day to day living.

At the heart of the home lies a charming country-style kitchen, rich in warmth and character. Designed to bring family and friends together, it offers generous bench space, quality appliances and abundant storage, all while overlooking the gardens and outdoor entertaining areas making it ideal for both everyday meals and entertaining on a grand scale.

Outdoor living is equally impressive. Multiple balconies, a classic wraparound verandah and an expansive entertaining deck take full advantage of the elevated position and stunning valley outlook. These inviting spaces are perfect for large family celebrations or quiet moments of reflection. An outdoor spa adds a touch of luxury — the perfect place to unwind while soaking in the surrounding tranquillity.

Additional features include:
Double garage plus extensive off-street parking for multiple vehiclesDucted heating for year-round comfortSolar power system for energy efficiencyWater tanks supporting sustainable livingBeautifully established, landscaped gardensPeaceful, whisper-quiet setting with exceptional privacy
Grand in scale yet warm and welcoming in atmosphere, this remarkable residence seamlessly combines timeless character with functional family living. Offering space, privacy and flexibility for large or extended families, this is a rare lifestyle opportunity in one of the Blue Mountains' most tightly held enclaves.

Private inspections only.
To arrange your exclusive viewing of this once-in-a-lifetime opportunity, call Chris on 4758 9444 or email century21hazelbrook@century21.com.au.

Property Information

  • Land area approx 3105sqm

Property Features

  • Garages 2
  • Air Conditioning
Century 21 Central Mountains Hazelbrook Central Mountains Hazelbrook
Shop 23, The Village, 192 Great Western Highway
Hazelbrook NSW 2779


Local Information Bullaburra

Education

Nearest Government Schools

  • Lawson Public School
  • Wentworth Falls Public School
  • Hazelbrook Public School
  • Leura Public School
  • Katoomba High School
  • Katoomba Public School

Nearest Private Schools

  • Our Lady of The Nativity Primary School
  • Korowal School
  • Kindlehill School
  • Blue Mountains Grammar School
  • Blue Mountains Steiner School
  • St Canice's Primary School

Local Amenities

Parks

  • South Lawson Park
  • Red Gum Park
  • Eungella Park
  • Bellevue Park

Services

  • Lawson Post Office
  • Wentworth Falls Post Office