Strathblane 149 Narrows Road

Enquire Now

Watch
Video
< >
Under Offer

For Sale
Under Contract - Offers Over $1,330,000

×

Quick Loan Calculator

  • Purchase Price 0
  • Deposit 0
  • Loan Amount 0
  • Monthly Repayment 0
  • Total Repayments 0
We can help you get the best deal from a range of lenders including large banks, key regional banks, credit unions and non-bank lenders. No stress, no fuss.
Save on a loan now
Disclaimer: This calculator does not include any taxes, fees, duties or levies. Before deciding on a loan product, you should seek independent financial advice from an a licensed financial adviser.

Discover Your Private Riverside Retreat

5 3 13

Open Times

Share This Property


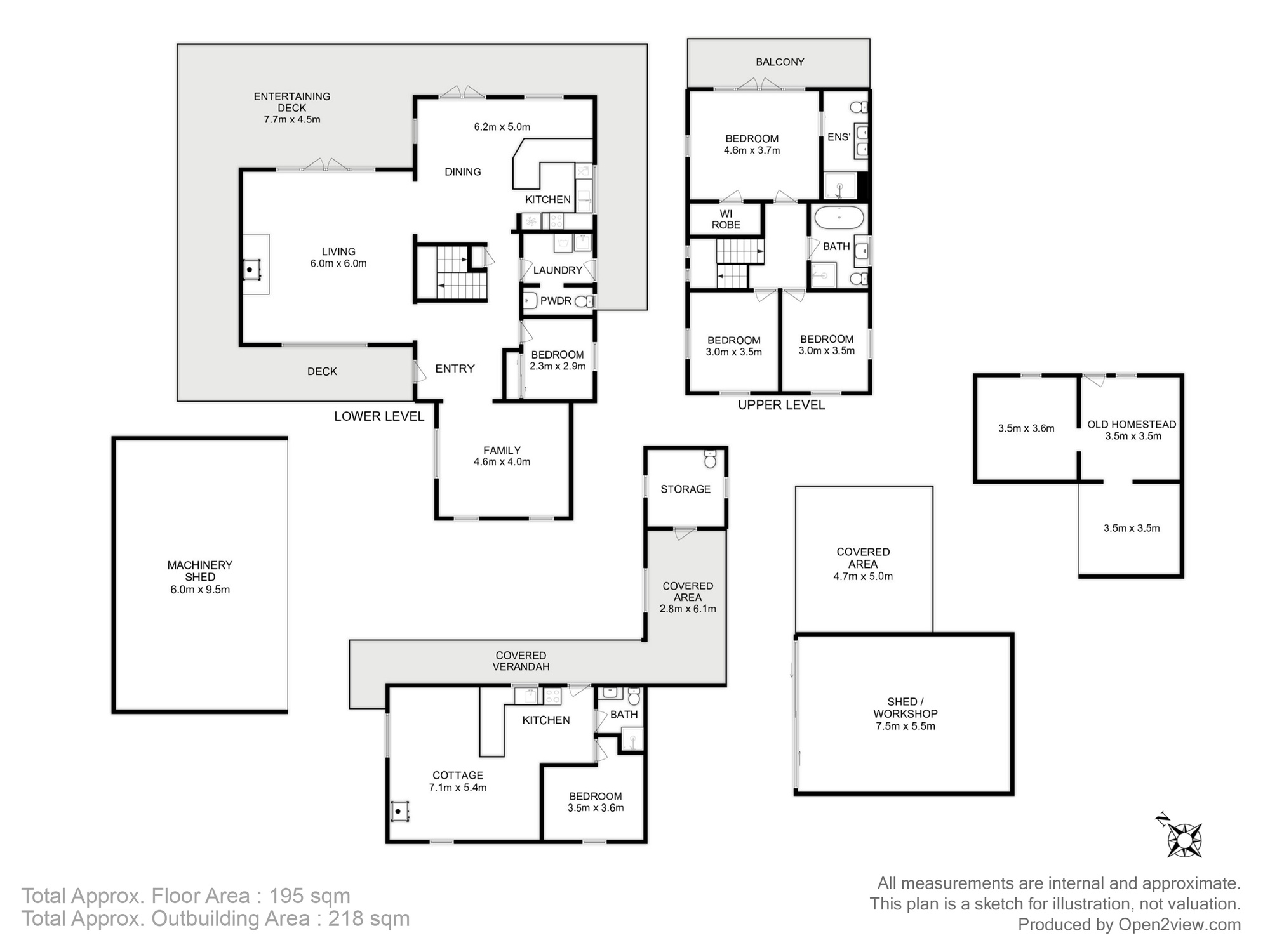
Step into a world where tranquillity meets the beauty of nature at this exquisite north-facing 4-bedroom, 2-bathroom home, complemented by a charming 1-bedroom cottage. Nestled in a serene setting on a 4.86 Ha or 12 Acres, Riverwood embodies the essence of peaceful living, offering a rejuvenating escape from the hustle and bustle of everyday life.

As you enter, you'll be captivated by the high ceilings and stunning architectural features that accentuate the home's unique character. The rich timber floors invite you to explore the spacious living areas that seamlessly blend comfort and elegance. Imagine waking up each day in a home designed for both relaxation and inspiration.

The lower level of the home features a captivating entry, a large living space where French doors open out on to the wrap around deck and down to the garden that leads to the Esperance River (looking across the crown reserve).

A solid blackwood kitchen and dining space are also included on the lower level, each with beautiful views of the river and garden. You will also find a second living space or snug that enjoys picturesque views of the garden, this is great for larger families so that everyone can find a space to relax. Also on this level is the 4th bedroom or study, a convenient powder room/3rd toilet and and a laundry that exits to the garden and rotary clothes line.

The second level is experienced via a staircase with cleverly included porthole windows. It is on this level that you find 3 more bedrooms, the master with ensuite and a private balcony. Each room features beautiful angles, light and garden views, with the master overlooking the river. The main bathroom is located on this level and features a claw foot bath and shower.

A separate 1 bedroom cottage is private from the main residence for guests, however not too far so that family can still be included. An open plan living area with a generous kitchen, also with views to the river, a double bedroom and separate bathroom. This dwelling offers the opportunity for multi-generational living, extra income or work from home possibilities.

The property includes the original 1880s homestead and provides someone with an opportunity to renovate and bring this piece of history back to life.

Your double garage is close to both the residence and the cottage and what country property is complete without sheds and storage? This property has a 3 bay shed perfect for the car, boat or to store hay and feed. Extra storage is adjacent to the cottage to ensure a place for bicycles, kayaks or firewood.

Surrounded by an established garden that bursts with life, this north-facing oasis is perfect for those who cherish self-sustainability. Picture yourself harvesting fresh produce from your own hot house, while geese, chickens, and sheep roam freely, enhancing the rural charm of your lifestyle. This is more than just a property; it's a way of life that reconnects you with nature.

Included in this enchanting setting is the pontoon on the river, a perfect spot for fishing, kayaking, or simply soaking in the breath-taking views. Enjoy the gentle sounds of the water as you unwind in your lush surroundings, where every moment feels like a retreat. You may even be graced with the presence of a seal, dolphins or spot a wedgetail eagle glide past.

Just over an hours drive south of Hobarts CBD, you will take in all the beauty that the Huon Valley is known for, as you journey home. There is so much to see and do in the area including a visit to Hastings Caves or the Thermal pool, taking a drive to Cockle Creek or Southport for camping, fishing and incredible bush walks or perhaps dropping in to some of the many food and wine establishments that the valley is famous for. Water sports are well catered for and there is plenty to find for the budding artist or outdoor enthusiast.

Dover is a few minutes north and includes a school, shopping centre and services. This locale will provide you with most of your needs. 40 minutes away is Huonville, where you will find a major supermarket and other retailers.
The sense of community is strong in these areas and you will find yourself being included as you get to know your new neighbourhood.

Riverwood is not just a home; it's an invitation to embrace a life of serenity and fulfilment and here is your chance to experience this remarkable piece of paradise. Your dream of riverside living starts here. Contact Alison for your private inspection of this salubrious property.

Property Information

  • Land area approx 4.86ha
  • Floor area approx 195sqm

Property Features

  • Car Spaces 6
  • Carports 5
  • Garages 2
Century 21 Stellar Group Stellar Group
31 Melville Street
Hobart TAS 7000
 
Phone0362319333  
 
 


Local Information Strathblane

Education

Nearest Government Schools

  • Dover District School

Local Amenities

Parks

  • Narrows Road Nature Reserve
  • Hopetoun Forest Reserve

Sport and Recreation

  • Dover Golf Course