West Lakes 2/9 Charles Street

Enquire Now
< >

For Lease
Contact Agent

Prime West Lake Location - Suit Medical/Office/Fitness

Rental Details

Open Times

Share This Property


Century?21 Commercial Adelaide is pleased to offer for lease Suite 2 on Level 3, 9 Charles Street, West Lakes for lease — Formerly BFT Fitness Center West Lakes, an outstanding opportunity to locate your business in one of Adelaide's evolving commercial precincts. The building itself is designed to support modern businesses, offering excellent public transport connections, ease of access from major roads, and a strategic presence in the western suburbs of Adelaide.

Key Highlights:

- Level?3 with expansive views over the Charles Street precinct
- Well-appointed layout ready for a professional fit?out
- Excellent natural light and visibility through full-height glazing
- Secure building access with lift, foyer, and shared amenities
- Close proximity to Westfield Shopping Center

Suite 2 is located within the prominent Charles Street commercial hub in West Lakes — a growing precinct with multiple high?quality tenants including medical, consulting, fitness and retail operators. Immediately nearby are well?established anchor destinations such as Westfield West Lakes, which includes major national retailers and provides high foot traffic and visibility.

Offered for lease at market terms. Tenant to pay outgoings and perform fit-out. Flexible lease durations considered.

Enquiries & Inspections:

To arrange an inspection or obtain further lease details, please contact:

Ronald Ozeri - 0413003029
Matt Lazarus - 0430745100

Century21 Commercial Adelaide
195 Wakefield Street, Adelaide
Phone: (08) 7477 7613
Email: admin@c21commercial.com.au
Website: c21commercial.com.au

Disclaimer: While every effort has been made to ensure the accuracy of the details within this advertisement, interested parties are encouraged to undertake their own due diligence throughout the sale process * All areas are approximate.

RLA 345268

Property Information

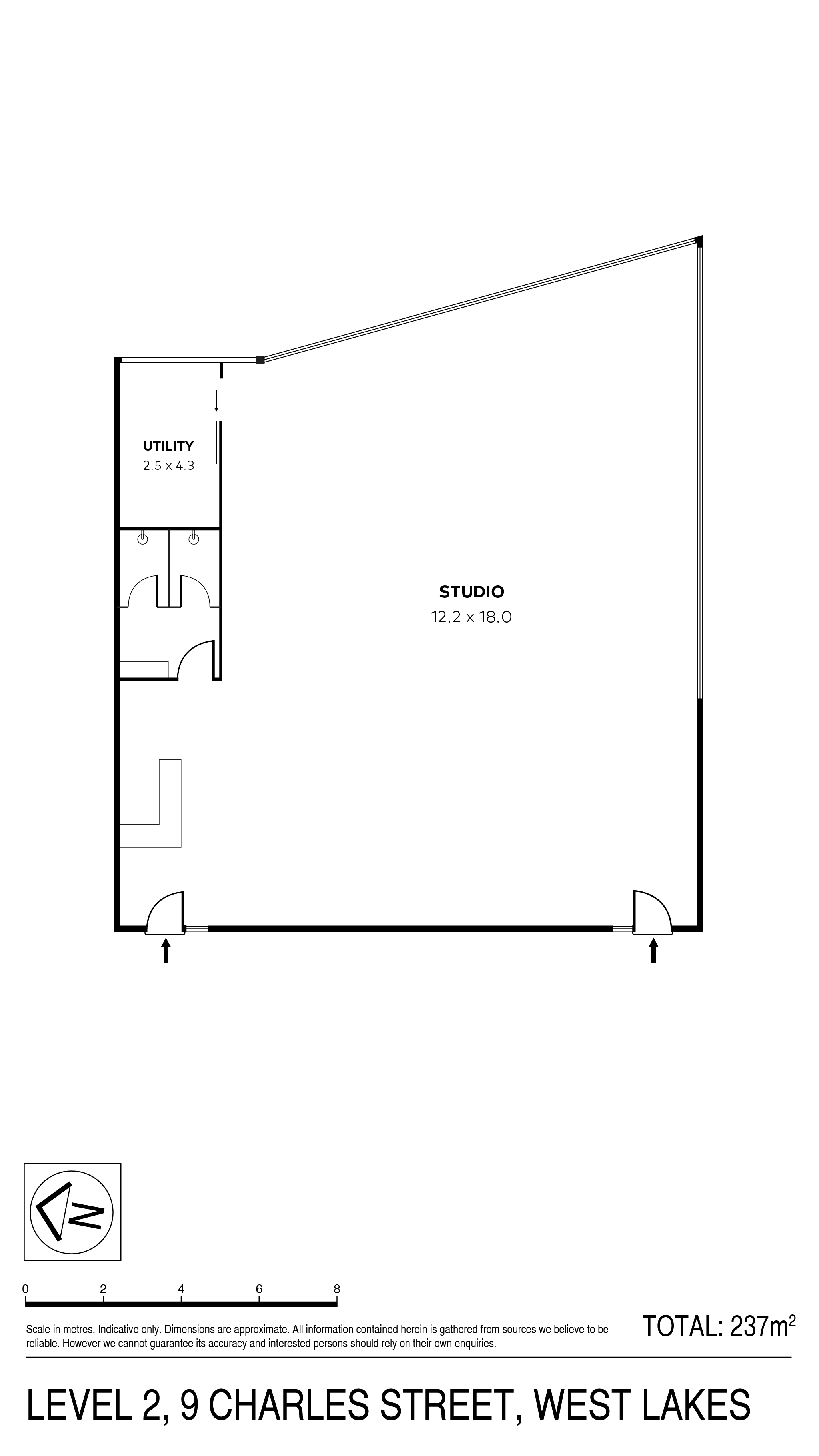
  • Land area approx 237sqm
  • Floor area approx 237sqm
Century 21 COMMERCIAL ADELAIDE COMMERCIAL ADELAIDE
195 Wakefield Street
Adelaide SA 5000
 
Phone08 74777613  
 
 


Local Information West Lakes

Education

Nearest Government Schools

  • Seaton High School
  • Hendon Primary School
  • West Lakes Shore School
  • Alberton Primary School
  • Westport Primary School
  • Grange Primary School

Nearest Private Schools

  • Our Lady Queen of Peace School
  • Portside Christian College
  • Mount Carmel College
  • Nazareth Catholic College - Primary Campus
  • Star of the Sea School
  • St Michael's College - Secondary Campus

Local Amenities

Parks

  • Football Park
  • Pedlar Reserve Oval
  • Royal Reserve
  • Carnegie South Reserve

Sport and Recreation

  • Football Park
  • Grange Golf Course
  • Riverside Golf Course
  • Pedlar Reserve Oval

Services

  • West Lakes Post Office
  • Cheltenham Post Office
  • Alberton Post Office
  • Ethelton Post Office

Viticulture

  • Cascabel Winery

Healthcares

  • Queen Elizabeth Hospital
  • Australian Museum Of Childhood
  • St Margarets Hospital
  • Community Mental Health Clinic_ Woodville

Community Facilities

  • Australian Museum Of Childhood
  • Charles Sturt Library